Family-friendly 5-room terraced house on Marshalls Alle
-
Area
- 114 m²
-
Property type
- House
-
Rooms
- 5 rooms
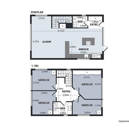
Welcome inside this large 5-room family home on Marshalls Alle. The apartment's 114 square metres are spread across two levels. On the ground floor you'll find, among other things, the home's spacious open-plan kitchen and dining area with a kitchen island. Adjacent to the kitchen is the home's cozy living room, which has access to a lovely terrace. On the lower level you will also find one of the home's two bathrooms. On the first floor you have four good bedrooms with built-in wardrobes as well as the home's second bathroom — here with a...
- Rent
- kr11,495 per month
- Location
- 9220, Aalborg Øst
- Rental period
- Unlimited
- Verified landlord
- Yes
- Date
- 30 days ago
- Available
- 2026-05-01
- Utilities
- kr0
- Deposit
- kr34,485
- Prepaid rent
- kr11,495
Location