Terraced house near the center.
-
Area
- 86 m²
-
Property type
- House
-
Rooms
- 3 rooms
Available now
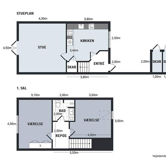
A two-storey terraced house with a small garden for rent. Located in a green area, close to Herning town centre. The ground floor includes an entrance/stairwell, a bright kitchen with dining area and a living room with access to a small terrace/garden. The first floor contains a bathroom and two good bedrooms with built-in wardrobes. The property is bright and has wooden floors throughout. The area is child-friendly and has good facilities, such as a community house with laundry, a playground and a sports field. Located close to shopping....
- Rent
- kr7,500 per month
- Location
- 7400, Herning
- Rental period
- Unlimited
- Verified landlord
- Yes
- Date
- 27 days ago
- Available
- Available now
- Utilities
- kr0
- Deposit
- kr22,500
- Prepaid rent
- kr7,500
Location