Nyopførte rækkehuse tæt på by og natur. 109 m2 inkl. hemse
-
Areal
- 100 m²
-
Boligtype
- Hus
-
Vær
- 4 værelser
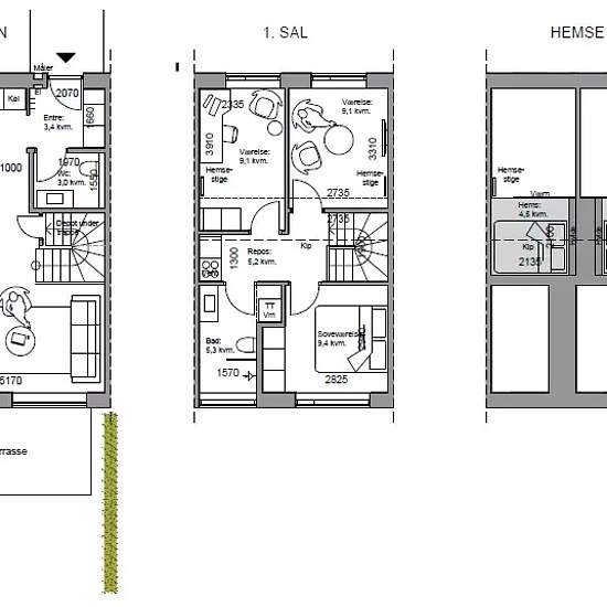
Denne nybyggede bolig byder velkommen i en lys og indbydende entré med praktisk skabsopbevaring. Fra entreen træder du ind i et stilfuldt køkken fra DESIGNA, som ligger i åben forbindelse med stuen. Fra opholdsområdet er der direkte udgang til en privat have med en dejlig terrasse – ideelt til afslapning og udeliv. I stueplan finder du også boligens første WC. På 1. sal ligger et rummeligt soveværelse med god skabsplads, et moderne badeværelse samt to lyse værelser. Begge værelser har en stor og brugbar hems med ståhøjde, som udover hygg...
- Leje
- 9.995 kr om måneden
- Placering
- 7400, Herning
- Lejeperiode
- Ubegrænset
- Verificeret udlejer
- Ja
- Dato
- 25 dage siden
- Ledig
- 01/04/2026
- Aconto
- 0 kr
- Depositum
- 29.985 kr
- Forudbetalt husleje
- 0 kr
Sted