2 room apartment in Aalborg
-
Area
- 72 m²
-
Property type
- Apartment
-
Rooms
- 2 rooms
Available now
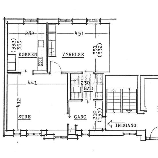
Denne super dejlige lejlighed er meget rummelig og lys. Når man træder ind i lejligheden kommer man ind i entreen, hvor man kan sætte sit overtøj og sko, inden man kommer ind i lejligheden. Fra entreen har vi også den ene indgang til badeværelset. Ejendommen er handicap/ældrevenlig, og har derfor to indgange. Man kan selvfølgelig altid vælge, at lukke det ene af, og eventuelt stille en kommode m.m. foran. Når man træder ligeud fra entreen kommer vi ind i den store stue, hvor man kan se, at der er masser af gulvplads og nogle gode vinduer. De...
- Rent
- kr6,325 per month
- Location
- 9000, Aalborg
- Rental period
- -
- Verified landlord
- Yes
- Date
- 23 days ago
- Available
- Available now
- Utilities
- kr900
- Deposit
- kr18,975
- Prepaid rent
- kr0
Location