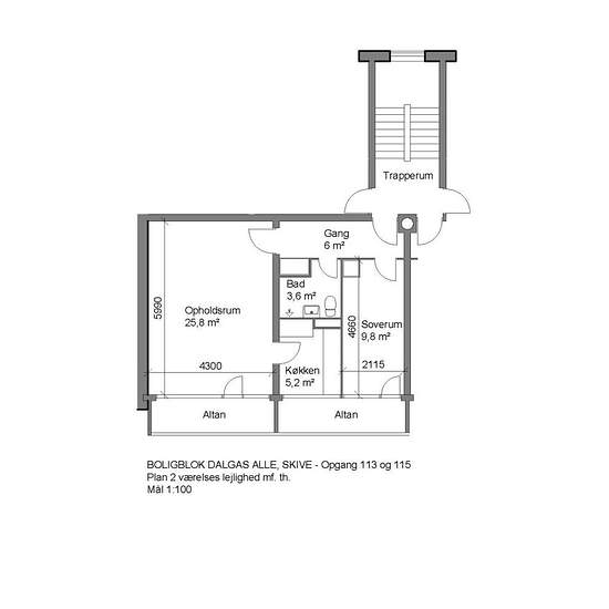
2 room apartment in Skive
-
Area
- 63 m²
-
Property type
- Apartment
-
Rooms
- 2 rooms
Large bright living room, bedroom, entrance hall with cupboards. Newer kitchen with stove, fridge/freezer and extractor hood. Bathroom with shower. Balcony. Cellar storage room. There are parquet floors throughout the apartment. Newer windows. Energy label D. There are charging stations for electric cars in the parking lot. Photos are indicative only. Jægerparken consists of three properties located a few minutes from Skive town center. There are good bus connections to both the town and the local area in very close proximity to the propert...
- Rent
- kr4,200 per month
- Location
- 7800, Skive
- Rental period
- -
- Verified landlord
- Yes
- Date
- 26 days ago
- Available
- Contact landlord
- Utilities
- kr650
- Deposit
- kr12,600
- Prepaid rent
- kr0
Location