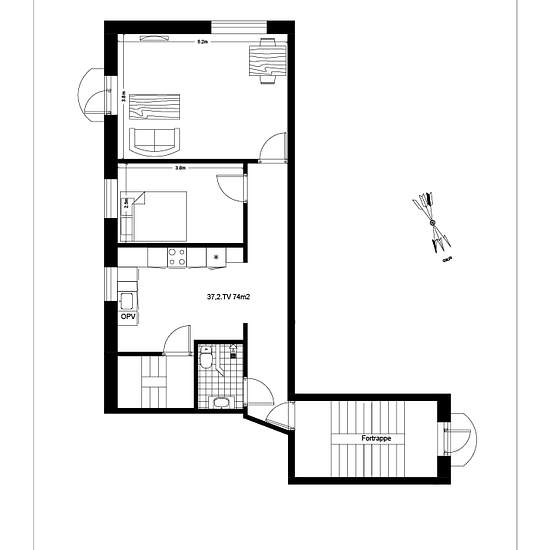
3 room apartment in Aalborg
-
Area
- 74 m²
-
Property type
- Apartment
-
Rooms
- 3 rooms
Available now
Velkommen til Prinsensgade 37, 2. tv. – en dejlig lejlighed i hjertet af Aalborg med nærhed til alt, hvad byen har at byde på. Attraktiv beliggenhed med kort afstand til offentlig transport Indkøbsmuligheder i nærheden, herunder Kennedy Arkaden Skønne grønne områder som Kildeparken og Mølleparken Fantastisk udsigt over Aalborg og Limfjorden fra nærområdet God planløsning med 3 værelser og lysindfald Boligen Denne lejlighed på 74 kvadratmeter rummer 3 værelser, der giver mulighed for både privatliv og fælles samvær. De lyse rum skaber en in...
- Rent
- kr6,295 per month
- Location
- 9000, Aalborg
- Rental period
- -
- Verified landlord
- Yes
- Date
- 4 days ago
- Available
- Available now
- Utilities
- kr900
- Deposit
- kr18,885
- Prepaid rent
- kr0
Location