3 room apartment in Nørresundby
-
Area
- 92 m²
-
Property type
- Apartment
-
Rooms
- 3 rooms
Available now
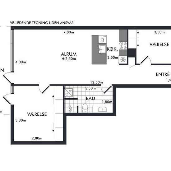
Velkommen til Lindholm Brygge – en moderne og rummelig lejlighed på 92 kvadratmeter, beliggende i et eftertragtet og roligt område tæt på både byliv og natur. Lejligheden har en funktionel planløsning med to soveværelser, der giver plads til både familie, hjemmekontor eller gæsteværelse. Det store og lyse opholdsrum kombinerer stue og køkken i ét, hvilket skaber en åben og indbydende atmosfære, perfekt til både hverdag og gæstebesøg. Køkkenet er stilrent og veludstyret med alle hårde hvidevarer, herunder ovn, kogeplade, emhætte, opvaskemas...
- Rent
- kr9,495 per month
- Location
- 9400, Nørresundby
- Rental period
- -
- Verified landlord
- Yes
- Date
- 7 days ago
- Available
- Available now
- Utilities
- kr800
- Deposit
- kr28,485
- Prepaid rent
- kr9,495
Location