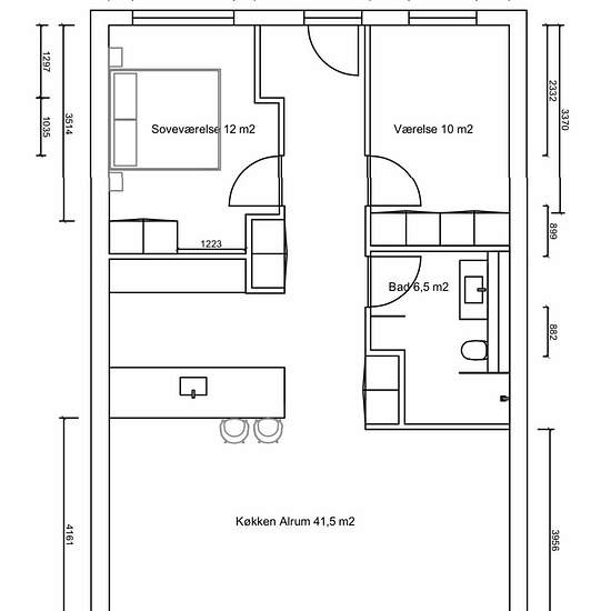
3 room house in Fanø
-
Area
- 90 m²
-
Property type
- House
-
Rooms
- 3 rooms
Available now
Nyopførte rækkehuse i Nordby, Fanø
- Rent
- kr9,150 per month
- Location
- 6720, Fanø
- Rental period
- -
- Verified landlord
- Yes
- Date
- 2 days ago
- Available
- Available now
- Utilities
- kr200
- Deposit
- kr27,450
- Prepaid rent
- Contact landlord
Location