3 room house in Ryslinge

Area
86 m²
Property type
House
Rooms
3 rooms

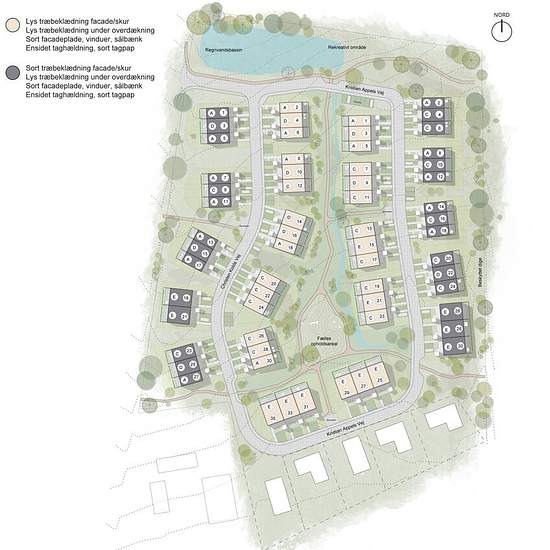
Drømmer du om egen parkeringsplads lige foran døren? En terrasse hvor du kan nyde den dejlige danske sommer? Eller et ekstra værelse til kontor eller børneværelse? Uanset hvad din boligdrøm indebærer, er der en god chance for, at den kan blive opfyldt med et 3 værelses rækkehuse i Hestehaven, Ryslinge. Træd ind i dit nye hjem Boligens entre er lavet med tanke på praktik. Her har du vaskemaskine og tørretumbler, plads til opbevaring af overtøj og sko samt et laminatgulv som er stærk og nem at vedligeholde. I forlængelse af entreen kommer bol...

Rent
kr8,762 per month
Location
5856, Ryslinge
Rental period
-
Verified landlord
Yes
Date
Yesterday
Available
2026-05-01
Utilities
Contact landlord
Deposit
kr26,286
Prepaid rent
Contact landlord
Location