3 room house in Tørring
-
Area
- 72 m²
-
Property type
- House
-
Rooms
- 3 rooms
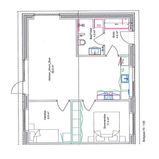
Welcome to Gymnasiebakken – a new residential area in Tørring. Gymnasiebakken offers a range of different homes from 70 to 96 m². There are 3-room apartments at 70 and 82 m² and 4-room apartments at 96 m². They are ready for move-in from 1 August 2026. INSIDE: This terraced house consists of a bright open-plan kitchen/dining area and living room with access to its own terrace. In addition, the home is equipped with an entrance hall, a lovely bathroom, and two bedrooms. The homes are heated by underfloor heating. PARKING: Each terraced house ...
- Rent
- kr8,200 per month
- Location
- 7160, Tørring
- Rental period
- Unlimited
- Verified landlord
- Yes
- Date
- 29 days ago
- Available
- 2026-08-01
- Utilities
- kr0
- Deposit
- kr16,400
- Prepaid rent
- kr0
Location