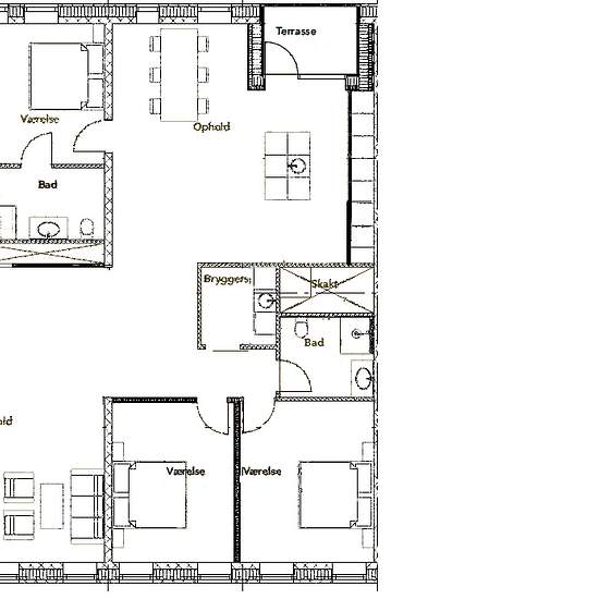
4 room apartment in Viborg
-
Area
- 203 m²
-
Property type
- Apartment
-
Rooms
- 4 rooms
En af de mest eksklusive lejligheder Viborg har at byde på, er nu kommet til leje. Lejligheden som er nyopført, er på hele 203 kvm og indrettet med 4 værelser. Som lejer har du egen indgang ved siden af hotellets hovedindgang, og derfor også privat elevator til lejemålet, der betjenes med kode, og deles med de få andre lejligheder. Der er mulighed for morgenmad i lobbyen samt smagsfulde drinks om aftenen, der eksempelvis kan nydes på den store tagterrasse - med udsigt ud over hele Viborg. Der er kort gåafstand til handlemuligheder, gode rest...
- Rent
- kr22,000 per month
- Location
- 8800, Viborg
- Rental period
- Unlimited
- Verified landlord
- Yes
- Date
- 27 days ago
- Available
- 2026-01-16
- Utilities
- Contact landlord
- Deposit
- kr66,000
- Prepaid rent
- Contact landlord
Location