4 room apartment in Viborg
-
Area
- 96 m²
-
Property type
- Apartment
-
Rooms
- 4 rooms
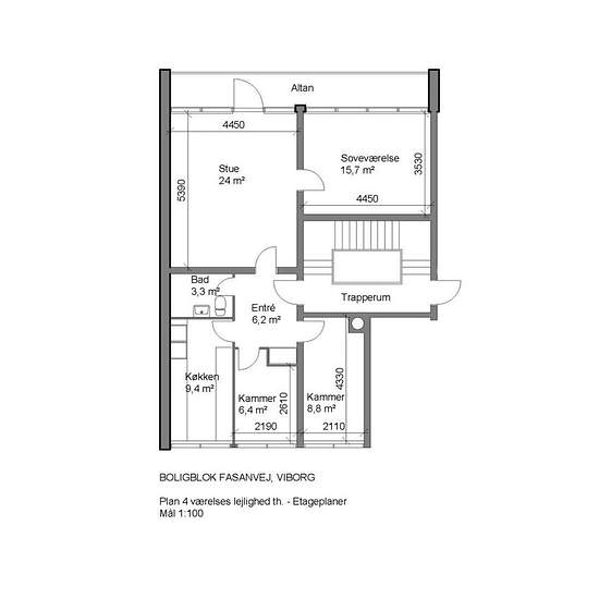
Lys stue med udgang til stor altan. Spisestue. Stort soveværelse med klædeskab. Stort værelse. Nyere køkken med køle/frys, komfur, opvaskemaskine og emhætte. Nyere badeværelse. Nye hvide skabe og døre 2021. Entre. Kælderrum. Der er parketgulve i lejligheden. Nyere vinduer. Energimærke D. Etagebyggeri beliggende få minutter fra Viborg centrum. I umiddelbar nærhed af ejendommen er der gode busforbindelser til by og lokalområdet. Til ejendommen hører et større parkanlæg samt et rigeligt antal parkeringspladser. Der er opsat ladestandere til e...
- Rent
- kr6,250 per month
- Location
- 8800, Viborg
- Rental period
- -
- Verified landlord
- Yes
- Date
- 4 days ago
- Available
- Contact landlord
- Utilities
- kr1,100
- Deposit
- kr18,750
- Prepaid rent
- kr0
Location