4 room house in Aabybro
-
Area
- 124 m²
-
Property type
- House
-
Rooms
- 4 rooms
Available now
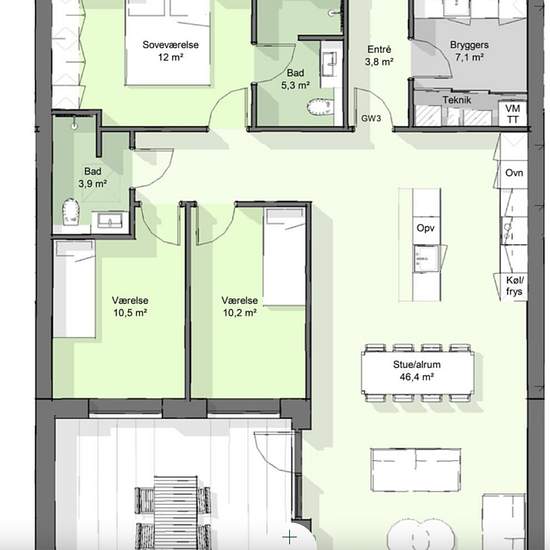
Exceptionally well-located new development with 16 terraced houses in Aabybro. The homes of 112–126 m2 are built in good, solid quality materials – outside as well as inside! Interior: This home is laid out with an entrance hall, utility room, kitchen/dining area and living room with access to a lovely terrace. Two bedrooms, a bathroom with shower and a master bedroom with its own bathroom, also with a shower. Underfloor heating throughout the home. Exterior: Manageable garden with lawn. Paved terraces and a double driveway with space for...
- Rent
- kr11,302 per month
- Location
- 9440, Aabybro
- Rental period
- -
- Verified landlord
- Yes
- Date
- 30 days ago
- Available
- Available now
- Utilities
- kr400
- Deposit
- kr33,906
- Prepaid rent
- kr0
Location