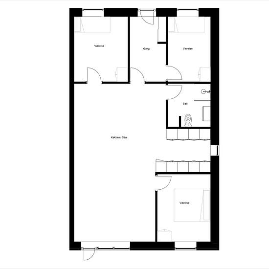
4 room house in Helsingør

Area
109 m²
Property type
House
Rooms
4 rooms

Rent
kr14,400 per month
Location
3000, Helsingør
Rental period
-
Verified landlord
Yes
Date
4 days ago
Available
Contact landlord
Utilities
kr590
Deposit
Contact landlord
Prepaid rent
Contact landlord
Location