4 room house in Løgstrup
-
Area
- 106 m²
-
Property type
- House
-
Rooms
- 4 rooms
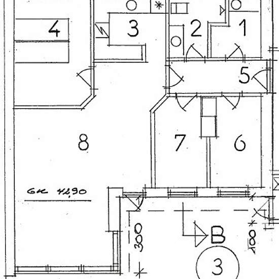
The house was built in 2015 and is located in the popular Skovlunden area of Løgstrup, west of Viborg. The residence includes a utility room with tiled floor, a bathroom with a shower enclosure, and a functional U-shaped kitchen with all major appliances. The bright living room has wooden flooring and access to a tiled terrace. In addition, the house comprises a tiled hallway, a bedroom with wooden flooring, and two rooms — also with wooden flooring. There is underfloor heating throughout the house, ensuring comfortable heat distribution yea...
- Rent
- kr9,125 per month
- Location
- 8831, Løgstrup
- Rental period
- Unlimited
- Verified landlord
- Yes
- Date
- 10 days ago
- Available
- 2026-02-27
- Utilities
- Contact landlord
- Deposit
- kr27,375
- Prepaid rent
- Contact landlord
Location