4 værelses rækkehus med have i Byhusene Holstebro 500 meter fra gågaden
-
Area
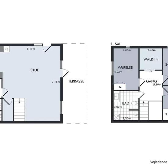
- 126 m²
-
Property type
- House
-
Rooms
- 4 rooms
I det nye boligområde, Byhusene Holstebro", udlejer vi et et hyggeligt rækkehus på 126 m2. Rækkehuset har et stort køkken alrum, 2 badeværelser og Soveværelse med Walk-in samt 2 gode værelser med indbygningsskabe. Byhusene ligger på en gade, hvor naturen er tænkt ind fra allerførste spadestik. Foran boligerne bliver du budt velkommen af en grøn kantzone, hvor du kan nyde solen ved et cafesæt. Bag hver bolig gemmer sig også et privat uderum med både terrasse og græsplæne.. Få meter fra rækkehusene støder du på Baneparken, som du ikke kan...
- Rent
- kr11,000 per month
- Location
- 7500, Holstebro
- Rental period
- Unlimited
- Verified landlord
- Yes
- Date
- Yesterday
- Available
- 2026-03-01
- Utilities
- kr0
- Deposit
- kr33,000
- Prepaid rent
- kr0
Location