5 room apartment in Copenhagen V

Area
110 m²
Property type
Apartment
Rooms
5 rooms

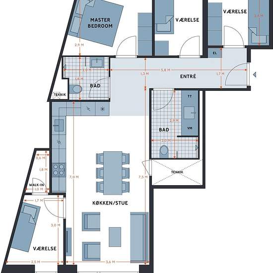
Note: Tenants should be aware that the images are visualizations and do not necessarily come from the specific unit, but may be from other apartments/terraced houses in the complex. The property: Here you get 4 good bedrooms, 2 bathrooms, and a walk-in closet off one of the bedrooms. You enter into the entrance hall, with plenty of space for outerwear and shoes. From here you have access to 3 bedrooms as well as the two bathrooms. From the kitchen-living area you have access to an additional bedroom with a walk-in closet and a south-facing...

Rent
kr24,900 per month
Rental period
-
Verified landlord
Yes
Date
Yesterday
Available
2026-05-01
Utilities
kr950
Deposit
kr74,700
Prepaid rent
Contact landlord
Location