5 room apartment in Viborg
-
Area
- 110 m²
-
Property type
- Apartment
-
Rooms
- 5 rooms
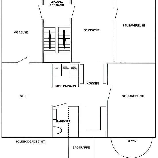
Very nice apartment in the center of Viborg for rent. The property was completely renovated in 2016, when a new kitchen with a dishwasher and a new bathroom were installed, along with beautiful new wooden floors throughout. There is also a dining room adjoining the kitchen, a living room, three bedrooms, and a hallway with a washing machine installed. The apartment is close to the pedestrian street, Fitness World, the train station and much more. Please note the rent includes water. The apartment is suitable for sharing by three people.
- Rent
- kr8,450 per month
- Location
- 8800, Viborg
- Rental period
- Unlimited
- Verified landlord
- No
- Date
- 31 days ago
- Available
- Contact landlord
- Utilities
- kr800
- Deposit
- kr25,350
- Prepaid rent
- kr4,225
Location