5-room terraced house in a family-friendly area
-
Area
- 128 m²
-
Property type
- Apartment
-
Rooms
- 5 rooms
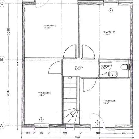
The 128 m2 townhouse is located in Fredericia close to shopping and sports facilities, 10 minutes from the city centre and not far from the station. Madsbyparken is also within walking distance. The townhouse has 4 bright rooms and 1 toilet, all located on the first floor. Open-plan kitchen and living room, 1 bathroom with shower, and a terrace on the ground floor. The house is bright and welcoming; you enter into the hallway which has a utility room with a washing machine and tumble dryer, and stairs lead up to the first floor. From the ent...
- Rent
- kr9,500 per month
- Location
- 7000, Fredericia
- Rental period
- Unlimited
- Verified landlord
- Yes
- Date
- 3 days ago
- Available
- 2025-12-12
- Utilities
- Contact landlord
- Deposit
- kr28,500
- Prepaid rent
- kr9,500
Location