Lækker 2-værelses lejlighed ved Godsbanen
-
Area
- 60 m²
-
Property type
- Apartment
-
Rooms
- 2 rooms
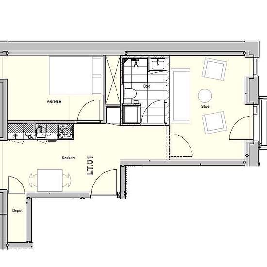
Lækker 2-værelses lejlighed på 60 m² beliggende i et eftertragtet område af Aarhus. Lejligheden er udstyret med et moderne køkken med opvaskemaskine og induktionskogeplade og et flot badeværelse med plads til egen kombi vaske- og tørremaskine. Lejligheden har to værelser - et soveværelse og en stue. Med egen altan fra stuen og store vinduer bringes der masser af naturligt lys ind i boligens værelser og videre ind i køkkenet. Der er ekstra opbevaringsplads, eftersom der er et depotrum i lejligheden, hvilket gør det nemt at have plads til all...
- Rent
- kr10,500 per month
- Location
- 8000, Aarhus C
- Rental period
- Unlimited
- Verified landlord
- Yes
- Date
- Today
- Available
- 2026-03-01
- Utilities
- kr600
- Deposit
- kr31,500
- Prepaid rent
- kr10,500
Location