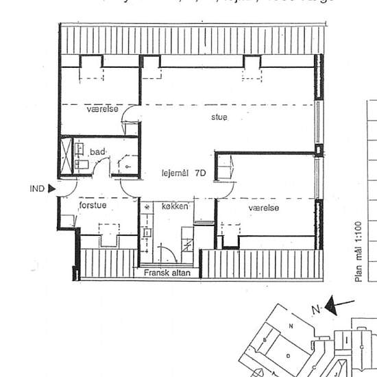
Large 3-room rental apartment of 141 m2 with a large open-plan kitchen-living area
-
Area
- 141 m²
-
Property type
- Apartment
-
Rooms
- 3 rooms
Residence: Welcome to your home at Ølbycenteret! This spacious 141 m² apartment welcomes you with 2 bright bedrooms and a large, roomy living room that opens up to an inviting open-plan kitchen/dining area that immediately captures your attention. The property: The apartment also offers access to the large communal roof terrace, where cozy gatherings and community events such as barbecues and summer parties are held. The location at Ølbycenteret gives you easy access to the station, restaurants, groceries, shopping, a pharmacy, a bakery a...
- Rent
- kr11,800 per month
- Location
- 4600, Køge
- Rental period
- -
- Verified landlord
- Yes
- Date
- Today
- Available
- 2026-03-01
- Utilities
- kr0
- Deposit
- Contact landlord
- Prepaid rent
- Contact landlord
Location