Lovely, partially furnished terraced house in Ørestad with a rooftop terrace

Area
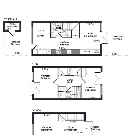
108 m²
Property type
House
Rooms
4 rooms

Lovely and tastefully furnished townhouse in a child-friendly neighborhood. The house is spread over 3 cozy and efficiently used floors. On the ground floor there is an entrance hall, kitchen-dining area and living room as well as a bathroom. From the living room there is access to a beautifully landscaped terrace. On the other floors there are 3 bedrooms and another bathroom. From the master bedroom on the top floor there is access to a lovely west-facing roof terrace from which the evening sun and the view over the area can be enjoyed. The...

Rent
kr17,500 per month
Rental period
More than 12 months
Verified landlord
Yes
Date
3 days ago
Available
2026-05-01
Utilities
kr750
Deposit
kr52,500
Prepaid rent
kr0
Location