Unik og moderne bolig
-
Area
- 64 m²
-
Property type
- Apartment
-
Rooms
- 3 rooms
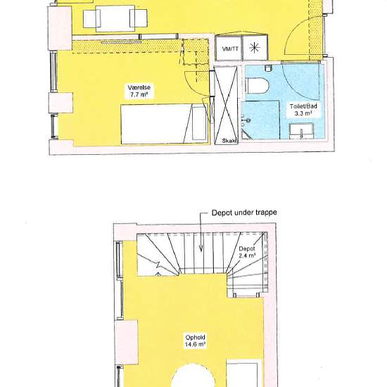
Skøn lejlighed i 2 plan i en nybygget ejendom på Flegmade. Om lejligheden Boligen er udstyret med køle-/fryseskab, indbygningsovn og keramisk kogeplade. Derudover er der gjort plads til egen kombi vaskemaskine/tørretumbler. Der er et soveværelse og et opholdsområde, der ligger i åben forbindelse til køkkenet. Derudover er der en rummelig stue på det nederste plan i lejligheden. Faciliteter Til fælles brug er der på 5. sal en stor tagterrasse med fælleshus inkl. køkkenfaciliteter. Du får desuden et depotrum, som er beliggende i gårdmiljø...
- Rent
- kr7,250 per month
- Location
- 7100, Vejle
- Rental period
- Unlimited
- Verified landlord
- Yes
- Date
- 3 days ago
- Available
- 2026-03-01
- Utilities
- kr500
- Deposit
- kr21,750
- Prepaid rent
- kr0
Location