UNIKKE & RÅ STUDIOS PÅ AMAGERBRO MED FITNESS, TAGTERRASSE OG MEGET MERE!
-
Area
- 65 m²
-
Property type
- Apartment
-
Rooms
- 1 room
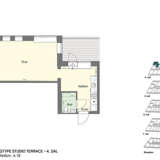
Studiolejlighed med stor, privat tagterrasse og udsigt til Kløvermarken. Vinklet planløsning giver naturlig opdeling af rum. Store vinduer og dør mod terrassen giver et flot lysindfald. Køkkenet er praktisk placeret og har alt, du skal bruge. Badeværelse med bruseniche. Et lyst, åbent hjem med egen oase under åben himmel. Ejendommen - Mere end bare din egen bolig: Siljangade rummer 138 lyse studios med eget køkken og bad – og adgang til alt det ekstra, der gør en forskel i hverdagen. Her er fælles tagterrasse med udsigt over byen, loungeområ...
- Rent
- kr14,900 per month
- Location
- 2300, Copenhagen S
- Rental period
- -
- Verified landlord
- Yes
- Date
- 10 days ago
- Available
- 2026-02-01
- Utilities
- kr400
- Deposit
- kr29,800
- Prepaid rent
- kr14,900
Location