Unique townhouse in Rødovre

Area
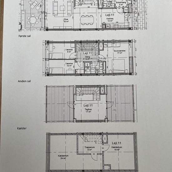
209 m²
Property type
House
Rooms
4 rooms

A four-level townhouse is now available for rent. The second floor has an excellent, unobstructed view over Rødovre’s rooftops. In the middle of the second floor a rooftop room with floor-to-ceiling windows has been installed, so it largely resembles an orangery. In addition, there are almost 40 sqm of roof terraces distributed so that there is always sun somewhere on the terraces (when the sun is shining). The four-level townhouse is 209 sqm (including the basement of approx. 60 sqm) and has a monthly rent of DKK 21,250. The rental compri...

Rent
kr21,250 per month
Location
2610, Rødovre
Rental period
Unlimited
Verified landlord
Yes
Date
Yesterday
Available
2026-03-01
Utilities
kr1,600
Deposit
kr63,750
Prepaid rent
kr21,250
Location