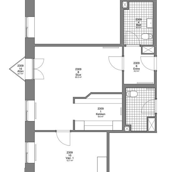
2 værelses lejlighed i Haderslev
-
Areal
- 75 m²
-
Boligtype
- Lejlighed
-
Vær
- 2 værelser
Lige i midten af Haderslev By ligger denne ejendom med udsigt til domkirken. På 1 sal af ejendommens bagside er der en tagterrasse til fælles brug.
- Leje
- 5.807 kr om måneden
- Placering
- 6100, Haderslev
- Lejeperiode
- -
- Verificeret udlejer
- Ja
- Dato
- Idag
- Ledig
- Kontakt udlejer
- Aconto
- 777 kr
- Depositum
- 15.080 kr
- Forudbetalt husleje
- Kontakt udlejer
Sted