2 værelses lejlighed i Nørresundby
-
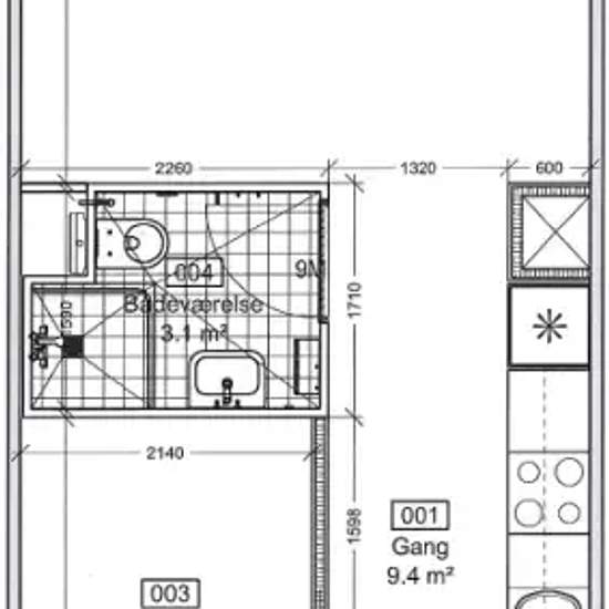
Areal
- 49 m²
-
Boligtype
- Lejlighed
-
Vær
- 2 værelser
Ledig nu
Velkommen til denne lejlighed hvor lys og stemning møder Nørresundbys pulserende liv. En indflytningsklar bolig med en behagelig atmosfære. Lejligheden byder på to separate rum, der kan indrettes efter behov, hvilket gør den ideel til både én person, et par eller som kompakt delebolig. Den funktionelle planløsning giver et godt udnyttelse af de 49 m², og her er der mulighed for at skabe både en hyggelig stue og et komfortabelt soveværelse. Køkkenet og badeværelset er praktisk indrettet, hvilket gør hverdagen nem og bekvem. Med en elevator i...
- Leje
- 4.895 kr om måneden
- Placering
- 9400, Nørresundby
- Lejeperiode
- -
- Verificeret udlejer
- Ja
- Dato
- 25 dage siden
- Ledig
- Ledig nu
- Aconto
- 600 kr
- Depositum
- 14.685 kr
- Forudbetalt husleje
- 4.895 kr
Sted