3 værelses hus i Ullerslev
-
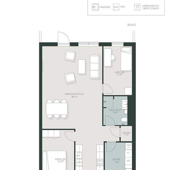
Areal
- 95 m²
-
Boligtype
- Hus
-
Vær
- 3 værelser
Dette nybygget rækkehus byder på flere kvadratmeter end det andet 3 værelses rækkehus i Højgårdsbakken. De ekstra kvadratmeter finder du i boligens samlingspunkt hvor du har stue og spiseplads i ét. Udover at du få flere kvadratmenter, så byder rækkehuset også på privat parkeringsplads, et udendørs skur med plads til opbevaring samt en dejlig træterrasse. En praktisk velkomst Rækkehusets entre er lavet med tanke på praktik. Det betyder at du får et vedligeholdes frit gulv som er nemt at rengøre. I entreen har du også vaskemaskine, tørretumb...
- Leje
- 8.995 kr om måneden
- Placering
- 5540, Ullerslev
- Lejeperiode
- -
- Verificeret udlejer
- Ja
- Dato
- I går
- Ledig
- Kontakt udlejer
- Aconto
- Kontakt udlejer
- Depositum
- 26.985 kr
- Forudbetalt husleje
- Kontakt udlejer
Sted