3 værelses lejlighed i Hedehusene
-
Areal
- 92 m²
-
Boligtype
- Lejlighed
-
Vær
- 3 værelser
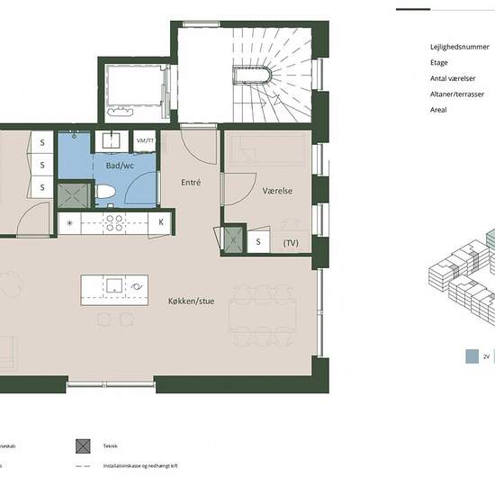
Oplysninger om bygningen og området 3-værelses lejlighed i Birken i Hedehusene Velkommen til Birken i Hedehusene, moderne lejligheder med plads til både hverdag og samvær. De 3-værelses lejligheder har åbent køkken med hårde hvidevarer, vaskemaskine og flere med tørretumbler. Planløsningen giver god plads til både ophold og soveværelser og passer perfekt til par og familier. Ejendommen Ejendommen er moderne og veldrevet med elevator, cykelparkering og grønne fællesområder. Her får du en rolig og behagelig hverdag i gode omgivelser. Området ...
- Leje
- 13.100 kr om måneden
- Placering
- 2640, Hedehusene
- Lejeperiode
- -
- Verificeret udlejer
- Ja
- Dato
- 5 dage siden
- Ledig
- 01/02/2026
- Aconto
- 1.050 kr
- Depositum
- 39.300 kr
- Forudbetalt husleje
- 13.100 kr
Sted