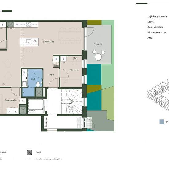
4 værelses lejlighed i Hedehusene
-
Areal
- 106 m²
-
Boligtype
- Lejlighed
-
Vær
- 4 værelser
Oplysninger om bygningen og området 4-værelses lejlighed i Birken i Hedehusene Velkommen til Birken i Hedehusene, rummelige og moderne lejligheder med fokus på komfort og familieliv. De 4-værelses lejligheder har moderne køkken med hårde hvidevarer, vaskemaskine og flere med tørretumbler. Planløsningen giver god plads til familieliv og samvær, og flere boliger har altan. Ejendommen Birken er et moderne byggeri med elevator, cykelparkering og grønne fællesområder. Her får du en tryg og rolig hverdag i gode rammer. Området Ejendommen ligger c...
- Leje
- 14.350 kr om måneden
- Placering
- 2640, Hedehusene
- Lejeperiode
- -
- Verificeret udlejer
- Ja
- Dato
- 12 dage siden
- Ledig
- 01/06/2026
- Aconto
- 1.200 kr
- Depositum
- 43.050 kr
- Forudbetalt husleje
- 14.350 kr
Sted