5 værelses lejlighed i Billund
-
Areal
- 112 m²
-
Boligtype
- Lejlighed
-
Vær
- 5 værelser
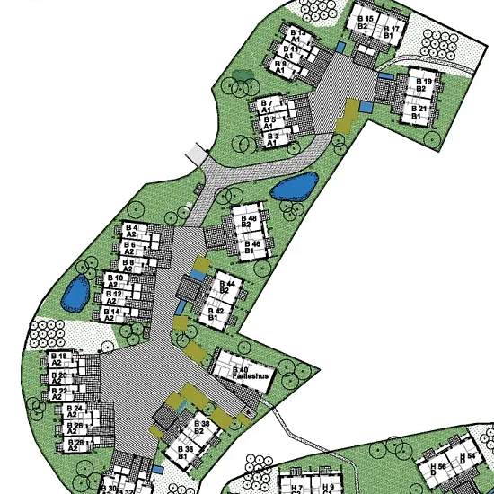
Afdelingen ligger ved Bolden og Hinkestenen i Billund. Boligerne består af rækkehuse og parcelhuse på 2-, 3- og 4-værelser i både et eller to plan. Bebyggelserne er opført mellem 2017 og 2018. Hver bolig har egen have og forhave med terrasse og redskabsskur. Hver bolig har også egen carport og der findes yderligere fællesparkering. Afdelingen har også et fælleshus og legeplads. Boligområdet ligger i udkanten af Billund i et nyere grønt område med kort cykelafstand til skole, idrætscenter og hundeskov. I Billund er der også indkøbsmuligheder,...
- Leje
- 8.816 kr om måneden
- Placering
- 7190, Billund
- Lejeperiode
- -
- Verificeret udlejer
- Ja
- Dato
- 14 dage siden
- Ledig
- 01/04/2026
- Aconto
- Kontakt udlejer
- Depositum
- 40.500 kr
- Forudbetalt husleje
- Kontakt udlejer
Sted