Dejlig rækkehus
-
Areal
- 94 m²
-
Boligtype
- Hus
-
Vær
- 3 værelser
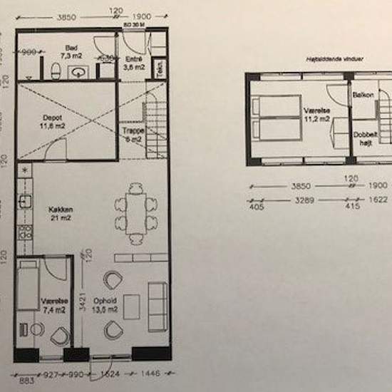
Dejlig lys og venlig bolig. Boligen er indrettet i moderne stil. Der er gulv-til-loft vinduer og ovenlys. Boligen indeholder i stueplan: entre, brusebadeværelse med plads til vaskesøjle, stue-køkken-alrum, et værelse, samt trappe til den indskudte etage der rummer et dejligt værelse. Boligen har egen indhegnet terrasse Opvarmning sker med naturgas. Der er mulighed for at få tilladelse til at holde hund og kat. Tæt på vuggestue, Sportshal og flere gode indkøbsmuligheder. Gode parkering muligheder.
- Leje
- 12.250 kr om måneden
- Placering
- 3200, Helsinge
- Lejeperiode
- Ubegrænset
- Verificeret udlejer
- Ja
- Dato
- Idag
- Ledig
- 15/03/2026
- Aconto
- 800 kr
- Depositum
- 36.750 kr
- Forudbetalt husleje
- 12.250 kr
Sted