Lækker renoveret lejlighed
-
Areal
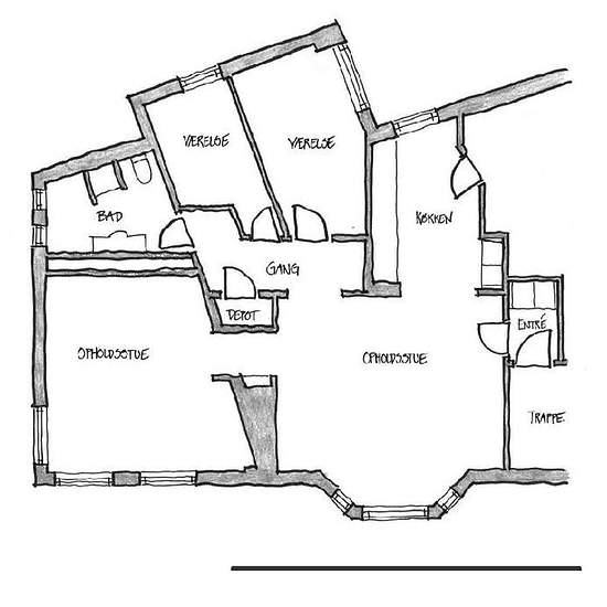
- 113 m²
-
Boligtype
- Lejlighed
-
Vær
- 4 værelser
På Sct. Jørgens Gade i Holstebro Centrum, få meter fra gågaden, udlejes en lækker nyistandsat 4-lejlighed, hvor den gamle sjæl i ejendommen er bevaret. Der forefindes opvaskemaskine, vaskemaskine, tørretumbler, emhætte, keramisk komfur, ovn og køle/frys - alt nyere. I acontobeløb indgår varme og vand. Der er mulighed for TV-pakker fra YouSee. P-hus lige i nærheden, hvor det er gratis at parkere. Lejligheden er delevenlig. Husdyr er ikke tilladt.
- Leje
- 7.050 kr om måneden
- Placering
- 7500, Holstebro
- Lejeperiode
- Ubegrænset
- Verificeret udlejer
- Ja
- Dato
- 19 dage siden
- Ledig
- 01/05/2026
- Aconto
- 1.100 kr
- Depositum
- 21.150 kr
- Forudbetalt husleje
- 0 kr
Sted