Moderne og indbydende bolig med terrasse, altan og carport
-
Areal
- 138 m²
-
Boligtype
- Hus
-
Vær
- 4 værelser
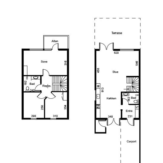
Lys og velindrettet bolig i to plan med et moderne udtryk og gennemtænkt planløsning. Boligen byder på et åbent køkken-alrum i direkte forbindelse med stuen, hvor de store vinduespartier sikrer et flot lysindfald og udgang til privat terrasse. Køkkenet fremstår stilrent med gode arbejdsflader og integrerede hårde hvidevarer. På førstesalen findes rummelige værelser med indbyggede skabe samt et lækkert badeværelse med separat bruseniche. Fra soveværelset er der adgang til altan, som giver et ekstra uderum. Der er desuden badeværelse på begge...
- Leje
- 16.500 kr om måneden
- Placering
- 8270, Højbjerg
- Lejeperiode
- Ubegrænset
- Verificeret udlejer
- Ja
- Dato
- I går
- Ledig
- 01/05/2026
- Aconto
- 0 kr
- Depositum
- 49.500 kr
- Forudbetalt husleje
- 16.500 kr
Sted