Nyopførte lejemål i flotte og moderne boligkomplekser
-
Areal
- 106 m²
-
Boligtype
- Lejlighed
-
Vær
- 4 værelser
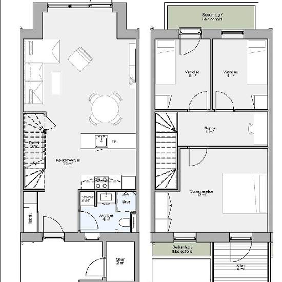
Moderne og lyst 4-værelses rækkehus i 2 plan med egen terrasse og altan i egen oase midt i Årslev. Ejendommen er opført med fokus på bæredygtighed, fællesskab og arkitektonisk variation. Facaderne består af varmebehandlet træ, hvilket understøtter den grønne profil. Ejendommene opføres som en del af Fremtidens Forstad i Årslev, syd for Odense er beliggende i naturskønne omgivelser omkring Vindinge Å. Der er derudover kort afstand til indkøb, institutioner og sportsfaciliteter. Lejligheden består i stueplan af entré, badeværelse samt et dejli...
- Leje
- 10.600 kr om måneden
- Placering
- 5792, Årslev
- Lejeperiode
- -
- Verificeret udlejer
- Ja
- Dato
- 28 dage siden
- Ledig
- 04/01/2027
- Aconto
- Kontakt udlejer
- Depositum
- 42.400 kr
- Forudbetalt husleje
- 10.600 kr
Sted