Nyt enderækkehus opføres i Snejbjerg
-
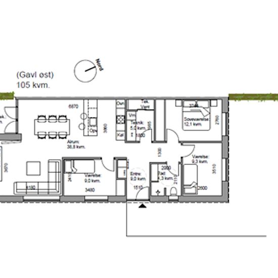
Areal
- 105 m²
-
Boligtype
- Hus
-
Vær
- 4 værelser
Boligen byder på et fantastisk køkken/alrum og stue i et, hvor et stilfuldt Svane køkken med hvide elementer og Siemens hvidevarer er integreret i rummet. Fra det store alrum/stuen er der udgang til privat terrasse og have. Boligen indeholder desuden et soveværelse med faste skabe, samt to yderligere værelser. Endvidere er der et flot badeværelse med bruseniche, hvidt skabsarrangement samt klinkegulv og gulvvarme. Endelig er der et godt bryggers, med opbevaringsmulighed og mulighed for egen vaskemaskine og tørretumbler. Boligerne opføres me...
- Leje
- 10.130 kr om måneden
- Placering
- 7400, Herning
- Lejeperiode
- Ubegrænset
- Verificeret udlejer
- Ja
- Dato
- 3 dage siden
- Ledig
- 01/07/2026
- Aconto
- 0 kr
- Depositum
- 30.390 kr
- Forudbetalt husleje
- 0 kr
Sted