Rækkehus med have og parkering
-
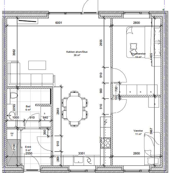
Areal
- 86 m²
-
Boligtype
- Hus
-
Vær
- 3 værelser
Rækkehusene indeholder entre med teknikskab og skab med plads til vaskesøjle (vaskemaskine og kondenstørretumbler). Køkken/alrum med hvidt grebsfrit køkken fra HTH. Køkkenet indeholder opvasker, emhætte, ovn, kogeplader og køle-/fryseskab. Rækkehusene indeholder et badeværelser med brus. Derudover har rækkehusene to værelser med indbygningsskabe. Til lejemålene tilhøre egen indkørsel med mulighed for opsætning af ladestander, egen have med fliseterrasse og græsplæne, samt eget skur. Med individuel gulvvarme og ventilation i alle rum i r...
- Leje
- 10.800 kr om måneden
- Placering
- 4295, Stenlille
- Lejeperiode
- Ubegrænset
- Verificeret udlejer
- Ja
- Dato
- 22 dage siden
- Ledig
- 01/04/2026
- Aconto
- 300 kr
- Depositum
- 32.400 kr
- Forudbetalt husleje
- 10.800 kr
Sted