4-room apartment for rent at Skejbyparken in Aarhus N.
-
Area
- 72 m²
-
Property type
- Apartment
-
Rooms
- 4 rooms
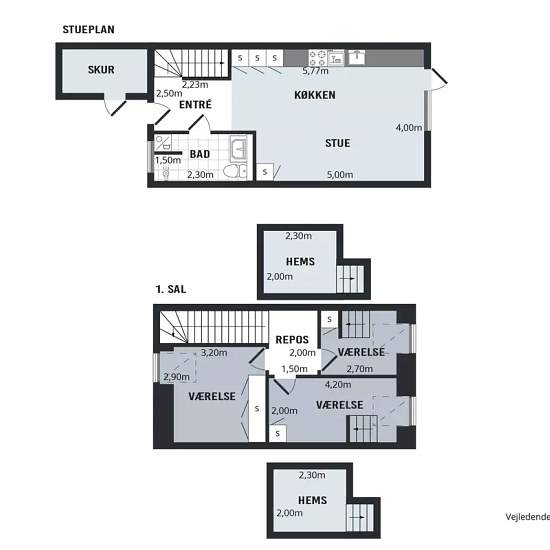
The ground floor features an open-plan kitchen-living area with all major appliances, including a fridge-freezer, oven, cooktop and dishwasher. The bathroom has underfloor heating and its own washer-dryer unit. On the first floor there are three good bedrooms with built-in wardrobes, two of which have loft spaces. There is access to a private terrace and garden from the kitchen-living area. In addition, the property has its own shed by the entrance. A dog or cat is allowed by agreement.
- Rent
- kr9,695 per month
- Location
- 8200, Aarhus N
- Rental period
- Unlimited
- Verified landlord
- Yes
- Date
- Today
- Available
- 2026-05-01
- Utilities
- kr0
- Deposit
- kr29,085
- Prepaid rent
- kr9,695
Location