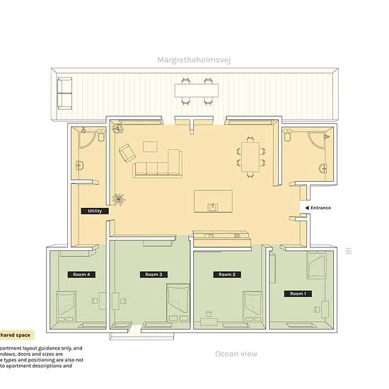
12 m² værelse i København K
-
Areal
- 12 m²
-
Boligtype
- Værelse
-
Vær
- 1 værelse
Description - space If you ever wanted to live on city island, with views to a ski slope, now you can. You live in the historical, green area Margretheholm, which used to be the home of the naval air station in 1915. Vandkunsten Architects designed this elegant top floor apartment. Wake up with the sun rising over the ocean, and finish the day with a drink and evening sun on the enormous terrace with breath-taking views of the Copenhagen harbor. You will never be bored on Refshaleøen. Hang out in trendy art galleries, the famous food market ...
- Leje
- 10.097 kr om måneden
- Placering
- 1432, København K
- Lejeperiode
- -
- Verificeret udlejer
- Ja
- Dato
- 6 dage siden
- Ledig
- 01/02/2026
- Aconto
- Kontakt udlejer
- Depositum
- 10.097 kr
- Forudbetalt husleje
- Kontakt udlejer
Sted