2-værelses lejlighed på Rugårdsvej
-
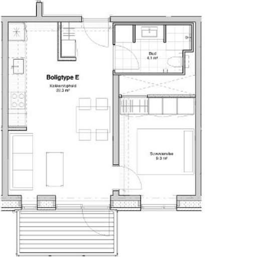
Areal
- 56 m²
-
Boligtype
- Lejlighed
-
Vær
- 2 værelser
Velkommen til Rugårdsvej - her er du tæt på både natur og Odenses byliv. Rugårdsvej er beliggende i et område, hvor du på fem minutter kan være i Snapindskov, Åløkkeskov og Næsbyhoved skov. Derudover har du 10 minutters gang til Odense C, som byder på hyggelige caféer og et fantastisk byliv. På Rugårdsvej kan du bo i 2-, 3-, og 4-værelses lejligheder, som har en kvadratmeter på mellem 56kvm og 124kvm. Tilfælles for alle lejligheder er, at kvadratmeterne er udnyttet og har et lyst udtryk. Alle lejlighederne er udstyret med et kvalitetskø...
- Leje
- 7.595 kr om måneden
- Placering
- 5000, Odense C
- Lejeperiode
- Ubegrænset
- Verificeret udlejer
- Ja
- Dato
- 7 dage siden
- Ledig
- 01/06/2026
- Aconto
- 630 kr
- Depositum
- 22.785 kr
- Forudbetalt husleje
- 7.595 kr
Sted