3 værelses hus i Viborg

Areal
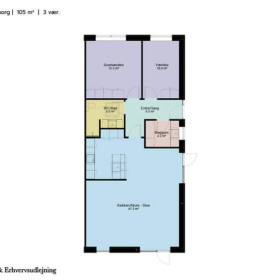
105 m²
Boligtype
Hus
Vær
3 værelser

Velkommen til Røllikevej i naturskønne Arnbjerg. Her er et lækkert, nybygget og topmoderne funkisvilla rækkehus til leje nu! Denne energivenlige bolig på hele 105 m2 byder på 2 gode værelser med indbyggede skabe samt en rummelig entré/gang. Fra entréen er et separat bryggers med masser af skabsplads. Boligen er velindrettet med et lækkert moderne og åbent kvalitetskøkken fra HTH samt et skønt og lyst badeværelse. Den store og lyse stue har direkte udgang til den skønne solterrasse og have. Indretningen af boligen skaber et hjem der rummer ...

Leje
11.195 kr om måneden
Placering
8800, Viborg
Lejeperiode
Ubegrænset
Verificeret udlejer
Ja
Dato
4 dage siden
Ledig
Kontakt udlejer
Aconto
0 kr
Depositum
33.585 kr
Forudbetalt husleje
Kontakt udlejer
Sted