3 værelses lejlighed i Aarhus N
-
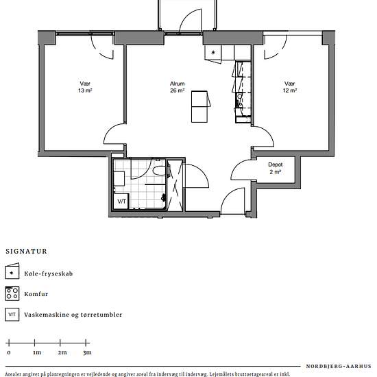
Areal
- 80 m²
-
Boligtype
- Lejlighed
-
Vær
- 3 værelser
Ledig nu
Attraktiv lejebolig med altan, der vender ud mod den, grønne og dejlige gårdhave, hvorfor det er muligt at nyde altanlivet uden at blive generet fra gadestøj. Lejligheden har et rummeligt alrum, der giver god mulighed for at indrette sig. Derudover er den topmoderne med lyse materialer og tilhørende opvaskemaskine, emhætte og indbygget ovn. Derudover gulvvarme i hele boligen samt vaskesøjle i badeværelset. Der er elevator i bygningen og der er et tilhørende opbevaringsrum til boligen. I kælderen er der mulighed for parkering til cykler samt ...
- Leje
- 11.100 kr om måneden
- Placering
- 8200, Aarhus N
- Lejeperiode
- -
- Verificeret udlejer
- Ja
- Dato
- 2 dage siden
- Ledig
- Ledig nu
- Aconto
- 400 kr
- Depositum
- 33.300 kr
- Forudbetalt husleje
- 11.100 kr
Sted