3 værelses lejlighed i Horsens
-
Areal
- 76 m²
-
Boligtype
- Lejlighed
-
Vær
- 3 værelser
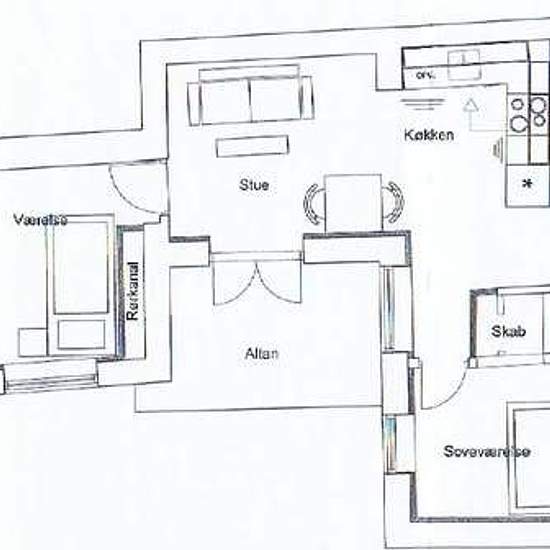
Smedegade, Horsens 76m2 - 3vær - 6.495,- Søger du en hyggelig lejlighed i hjertet af byen? Så læs med her! Første sal Overdækket altan og fælles have Lyst køkkenalrum Viktualierum Central beliggenhed Indflytningsklar 15.02.2026 Læs mere om lejligheden her: Hvis dette lyder som noget for dig, så kontakt os gerne for en fremvisning! Kontakt på tlf. +900 Send en mail til EMAIL
- Leje
- 6.495 kr om måneden
- Placering
- Horsens
- Lejeperiode
- -
- Verificeret udlejer
- Nej
- Dato
- Idag
- Ledig
- Kontakt udlejer
- Aconto
- Kontakt udlejer
- Depositum
- Kontakt udlejer
- Forudbetalt husleje
- Kontakt udlejer
Sted