3 værelses lejlighed i Kolding

Areal
96 m²
Boligtype
Lejlighed
Vær
3 værelser

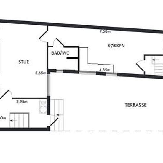
**Vær med fra starten: Unik 2- ELLER 3-værelses lejlighed med Koldings fedeste beliggenhed** **KUN 2 MÅNEDERS BELIGGENHED** **FACTS:** Adresse: Østergade 9, 1. Vær: 3 Kvm: 96 Leje: 9.900 kr./mnd. A/C vand og varme: 700 kr/mnd Indflytningspris: 2 mnd depositum + første måneds husleje og A/C = 30.400 Indflytning: omkring 1/4 Søger du en lejlighed med kant, charme og byens puls lige uden for døren? Og vil du selv have medindflydelse på, hvordan dit næste hjem skal se ud? Så er dette en enestående mulighed. Lige bagved populæ...

Leje
9.900 kr om måneden
Placering
Kolding
Lejeperiode
-
Verificeret udlejer
Nej
Dato
Idag
Ledig
Kontakt udlejer
Aconto
Kontakt udlejer
Depositum
Kontakt udlejer
Forudbetalt husleje
Kontakt udlejer
Sted