3 værelses lejlighed i Viborg
-
Areal
- 136 m²
-
Boligtype
- Lejlighed
-
Vær
- 3 værelser
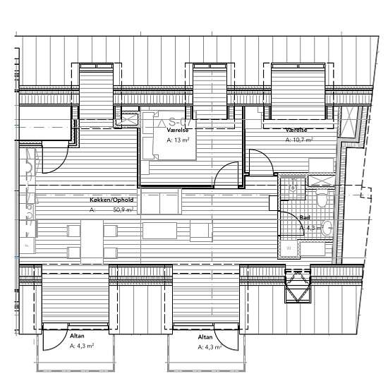
Nu har du mulighed for at overtage en helt særlig lejlighed! Denne 136 kvm store penthouselejlighed ligger i toppen af en nyopført ejendom midt i Viborg Centrum. Lejligheden byder på to vestvendte altaner, der giver rolig udsigt til en aflukket gård. Med loft til kip i hele lejligheden skabes en imponerende loftshøjde, der giver en ekstra rummelig fornemmelse. Lejligheden er udstyret med alt i hårde hvidevarer, herunder en Quooker, som giver dig kogende vand på et splitsekund. Du får også adgang til privat parkering i ejendommens parkeringsk...
- Leje
- 10.500 kr om måneden
- Placering
- 8800, Viborg
- Lejeperiode
- Ubegrænset
- Verificeret udlejer
- Ja
- Dato
- 20 dage siden
- Ledig
- 23/01/2026
- Aconto
- 1.350 kr
- Depositum
- 31.500 kr
- Forudbetalt husleje
- Kontakt udlejer
Sted