5 værelses hus i Aalborg Øst
-
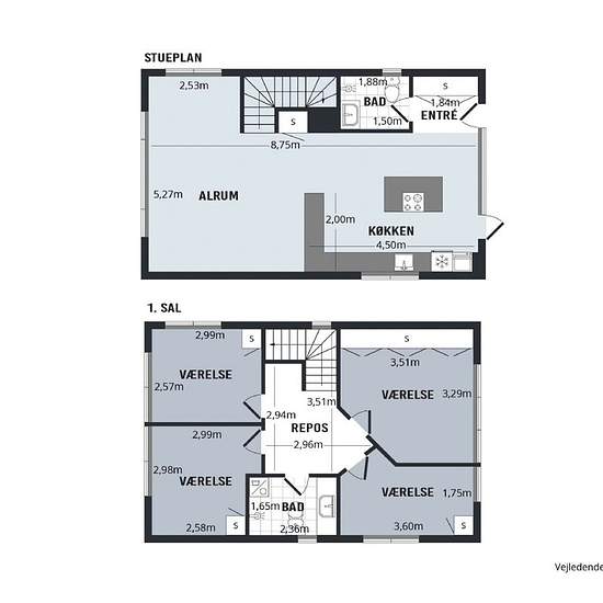
Areal
- 114 m²
-
Boligtype
- Hus
-
Vær
- 5 værelser
Velkommen indenfor i dette dejlige rækkehus på Marshalls Allé - et skønt område i det østlige Aalborg, der siden 2020 står helt færdigt. Tæt på både Gigantium og AAU. Rækkehusets kvadratmeter er fordelt på 2 plan - i stueetagen finder du lejlighedens skønne opholdsrum (køkkenalrum og stue) samt ét af boligens stilrene badeværelser. Fra opholdsrummet har du ligeledes udgang til boligens store terrasse samtidig med, at du finder trappen, der fører dig videre til 1. sal. På 1. salen finder du rækkehusets 3 dejlige værelser, der alle har indbygg...
- Leje
- 11.495 kr om måneden
- Placering
- 9220, Aalborg Øst
- Lejeperiode
- Ubegrænset
- Verificeret udlejer
- Ja
- Dato
- 23 dage siden
- Ledig
- 01/05/2026
- Aconto
- Kontakt udlejer
- Depositum
- 34.485 kr
- Forudbetalt husleje
- 11.495 kr
Sted