5 værelses lejlighed i Silkeborg
-
Areal
- 132 m²
-
Boligtype
- Lejlighed
-
Vær
- 5 værelser
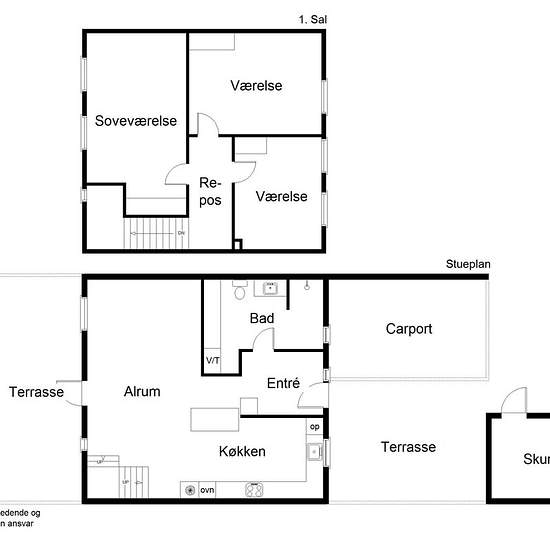
Beskrivelse 5 værelses rækkehus i skønne naturrige omgivelser – plads til hele familien GØDVAD – ÅRETS LOKALOMRÅDE Gødvad er en gammel landsby, som de seneste år har fået nyt liv som en integreret del af Silkeborg. Gødvad er i rivende udvikling og tiltrækker mange nye tilflyttere – og af god grund. I 2018 blev Gødvad kåret til årets lokalområde, bl.a. pga. sit aktive foreningsliv. I Gødvad er der daginstitutioner, to gode skoler og flere fritidsaktiviteter for børnene. Området er forbundet af trygge, oplyste stisystemer, og der er skøn na...
- Leje
- 11.195 kr om måneden
- Placering
- 8600, Silkeborg
- Lejeperiode
- Ubegrænset
- Verificeret udlejer
- Ja
- Dato
- 6 dage siden
- Ledig
- 01/06/2026
- Aconto
- Kontakt udlejer
- Depositum
- 33.585 kr
- Forudbetalt husleje
- 11.195 kr
Sted