Dejligt 2-værelses lejemål i et flot og moderne boligkompleks
-
Areal
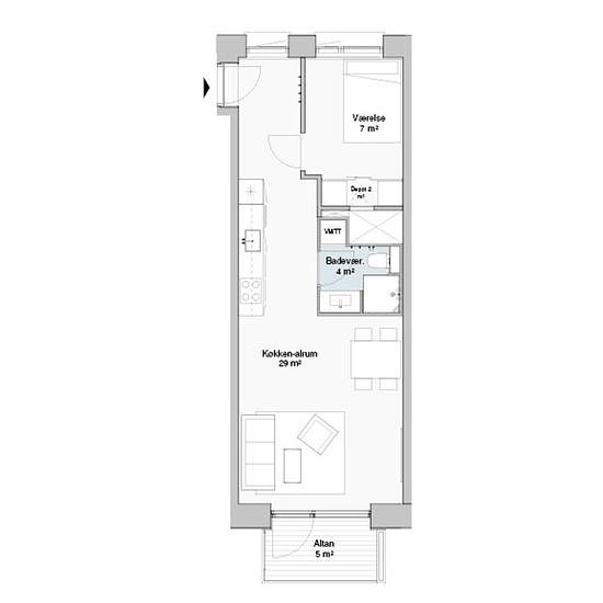
- 58 m²
-
Boligtype
- Lejlighed
-
Vær
- 2 værelser
Flot og indbydende 2-værelses lejlighed med egen terrasse, i nyopført boligkompleks. Lejligheden består af entre, badeværelse, soveværelse med tilhørende garderobeskabe samt et dejligt lyst køkken-alrum. Der er opvaskemaskine og vaskefaciliteter i lejemålet. Denne skønne ejendom er tæt beliggende på SDU, erhvervsliv og indkøbsmuligheder, og med kun 2 minutters gang er man ved letbanen, som jævnligt kører rundt i Odense. I midten af komplekset findes et skønt grønt gårdmiljø, hvor der er en stor fællesterrasse, oven på den nedgravet cykelkæld...
- Leje
- 6.680 kr om måneden
- Placering
- 5230, Odense M
- Lejeperiode
- -
- Verificeret udlejer
- Ja
- Dato
- 11 dage siden
- Ledig
- 15/05/2026
- Aconto
- 600 kr
- Depositum
- 26.720 kr
- Forudbetalt husleje
- 6.680 kr
Sted