Flot 2-værelses lejlighed i Gartnerbyen!
-
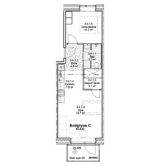
Areal
- 62 m²
-
Boligtype
- Lejlighed
-
Vær
- 2 værelser
Det er helt nye lejligheder, der er placeret i Gartnerbyen – Odenses grønne hjerte. Du kommer til at bo i et område, der er tæt på centrum, hvor du har alt inden for rækkevidde! Lejlighederne har store vinduer, der giver et godt lysindfald. Derudover er der en fin altan eller en terrasse til alle lejligheder. Materialerne til lejlighederne er nøje udvalgte, så lejligheden har et moderne udtryk. Stuen ligger i forlængelse af køkkenet, hvilket skaber et åbent miljø. Fra stuen har du adgang til altanen eller terrassen. I køkkenet er der er ...
- Leje
- 7.200 kr om måneden
- Placering
- 5200, Odense V
- Lejeperiode
- Ubegrænset
- Verificeret udlejer
- Ja
- Dato
- 2 dage siden
- Ledig
- 01/05/2026
- Aconto
- 600 kr
- Depositum
- 21.600 kr
- Forudbetalt husleje
- 0 kr
Sted