Godt indrettet 2-værelses i skønne Odense! KUN 2 MÅNEDERS DEPOSITUM
-
Areal
- 48 m²
-
Boligtype
- Lejlighed
-
Vær
- 2 værelser
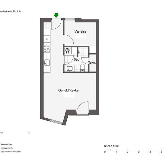
Om boligen: Velkommen til denne moderne 2 værelses lejlighed, der byder på stilfuld komfort og praktiske genialiteter. Her er virkelig tænkt over fordeling af kvadratmeterne med en smart planløsning, der giver en optimal indretning. Det moderne køkken er et sandt knudepunkt for denne lejlighed med en flydende overgang til stuen. Udstyret med topmoderne apparater og elegant design er det et ideelt sted til madlavning og underholdning. De glatte overflader og smarte opbevaringsløsninger giver både funktionalitet og æstetik mens det åbne layout...
- Leje
- 6.900 kr om måneden
- Placering
- 5000, Odense C
- Lejeperiode
- -
- Verificeret udlejer
- Ja
- Dato
- 9 dage siden
- Ledig
- 01/05/2026
- Aconto
- 0 kr
- Depositum
- 13.800 kr
- Forudbetalt husleje
- 6.900 kr
Sted